Prodej stavebního pozemku – Březnice u Zlína

Popis nemovitosti

Nabízíme k prodeji stavební pozemek o výměře 1 176 m², k pozemku náleží les o rozloze 541 m². Nachází se v klidné a příjemné lokalitě obce Březnice u Zlína, ideální pro výstavbu rodinného domu. Pozemky se nachází cca 100 m od autobusové točny s pravidelným spojením do Zlína.

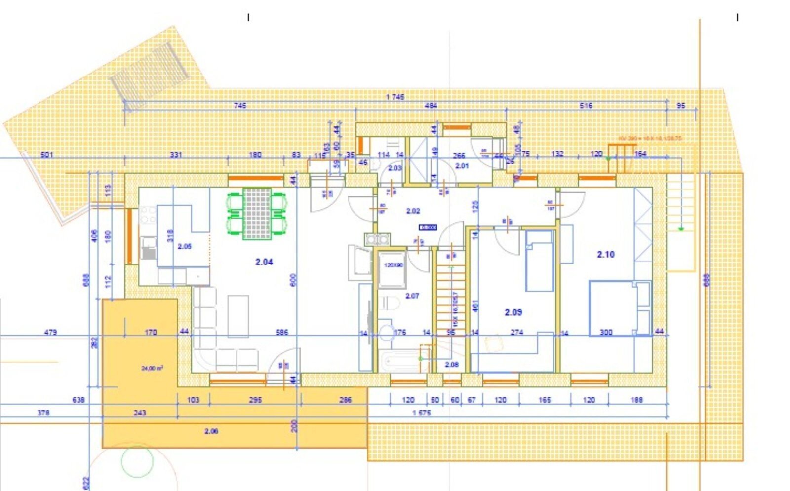
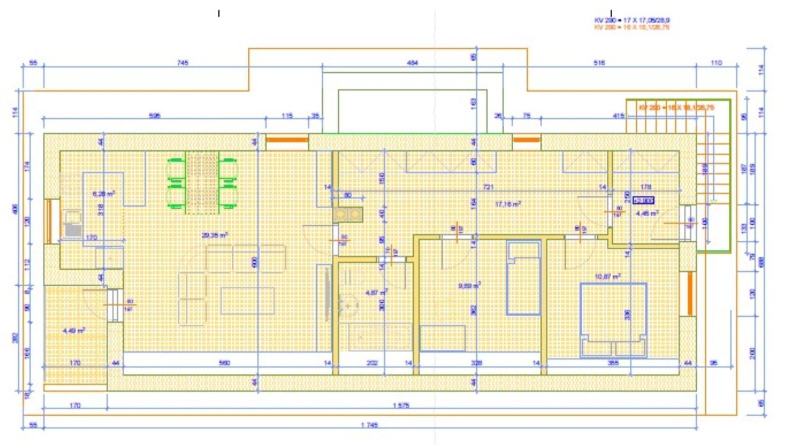
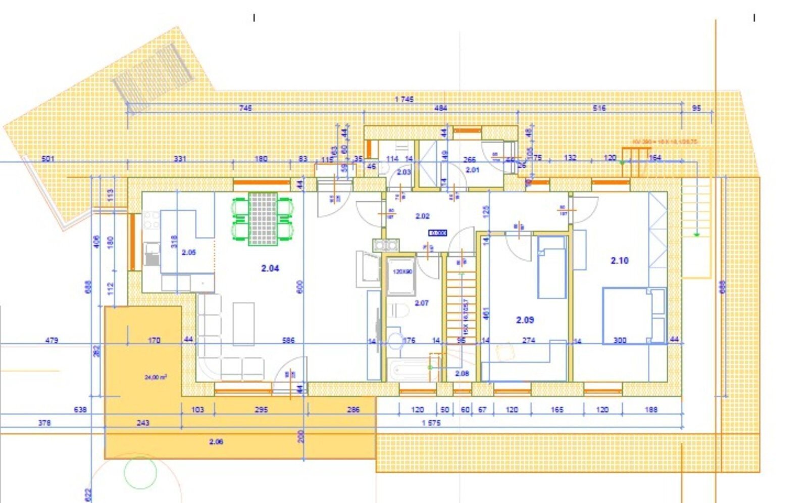
Na stavebním pozemku v současné době stojí stavba, lesní pozemek se dá z části využít pro parkovací stání. Současný majitel měl zájem o vybudování nového domu, v galerii jsou k dispozici vizualizace.

Inženýrské sítě:
- voda, elektřina, plyn jsou na pozemku
- kanalizace plánována do 2 let

Lokalita:
Pozemky leží ve vyhledávané obci Březnice s výbornou dostupností do krajského města Zlín (5 km). Umístění pozemků poskytuje příjemné prostředí obklopené přírodou, vhodné pro klidné bydlení.

Občanská vybavenost v obci a okolí:
- Základní škola a mateřská škola přímo v obci
- obchod s potravinami
- další služby a obchody ve Zlíně – supermarkety, nákupní centra, restaurace, služby i zdravotnická zařízení dostupné autem i MHD
- sportovní areál, fotbalové hřiště a kulturní akce

Dopravní dostupnost:
- autobusová zastávka cca 100 m od pozemku s pravidelným spojením do Zlína
- pohodlná dostupnost do města

Ráda vám pozemek osobně ukážu. Těším se na prohlídce!
Alena Hlavinková

Cena za nemovitosti

3 900 000 Kč

Kontaktní formulář


tel.: +420 731 618 472 alena.hlavinkova@email.cz

731 618 472